MONOAMBIENTES CON BALCON EN CENTRO DE AVELLANEDA - FINANCIADOS

direccion Marconi 500, Avellaneda

volver Volver al listado
left
right
left
right

Venta

USD 55.000

  • Destacado Destacado
  • Oportunidad
  • Tipo de propiedad Departamentos
  • ambientes 1 Ambiente
  • toilet 1 baño
  • Disposicion Disposicion Frente
  • Anticipo y cuotas Anticipo y cuotas
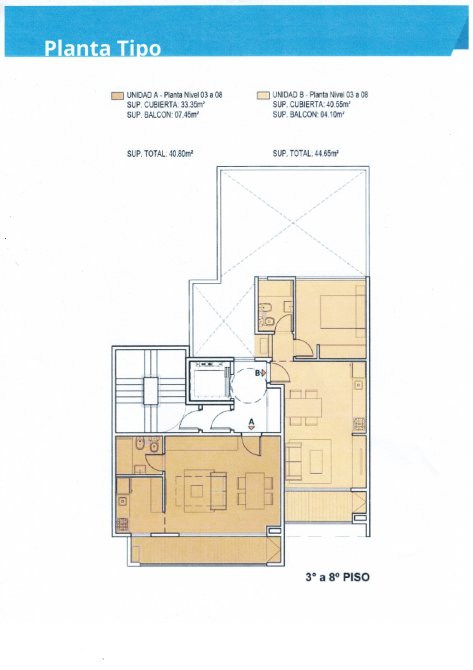
  • Superficie cubierta Sup. cubierta 33m2
  • Superficie total Sup. total 41m2
  • Antiguedad Antigüedad A estrenar
  • Estado Estado Excelente

Acerca de la propiedad

 El edificio:
. Estructura de hormigón armado. .Muros y tabiques de mampostería tradicional. .Revoque exterior proyectado 3 en 1.
. Las cañerías de provisión de agua fría y caliente estarán materializadas con sistema de termofusión.
. Desagües cloacales y pluviales con sus respectivas ventilaciones.
.Instalación eléctrica con encendido de partes comunes mediante sensores de movimientos en planta baja; cañería y cables reglamentarios; circuitos eléctricos según las necesidades de
cada unidad, en cumplimiento con las normas del ENRE.
.Ascensor electromecánico de última generación con cabina de acero inoxidable. .Artefactos de iluminación LED en espacios comunes y cajas de escalera.
.Matafuegos y luz de emergencia en espacios
comunes.
 
Las Unidades
Revestimientos de porcelanato en baños y cocinas.
Pisos de porcelanato en estares-comedores, cocinas, dormitorios.
. Cielorrasos muros con terminaciones de yeso pintados al látex.
Puertas de chapa con doble inyectadas en acceso a las unidades.
Puertas interiores placas pintadas.
. Carpinterías de aluminio, línea A30 con vidrio de DVH.
Baranda de balcones en hierro con pintura acrílica.
.Muebles bajo mesada y alacenas en cocina y frentes de placares en dormitorios. Mesada de granito en cocinas. Griferías en baños y cocina, marca FV.
.Pileta de cocina en acero inoxidable, marca Mi Pileta.
Artefactos de baño de losa blanca, marca Roca Mónaco.
. Instalación para lavarropas automáticos bajo mesada.
.Horno y anafes eléctricos.
. Preinstalación para colocación de sistema de refrigeración por equipos splits en estares y dormitorios.
Telefonía, TV y datos: canalización y cajas en todas las unidades preparadas para la instalación del servicio por parte de las compañías proveedoras.
.Terraza en unidad duplex con solárium y parrilla privada.

A ESTRENAR. DISPONIBLES: Unidades monoambientes de 33,35 M2 cubiertos con balcón e 7,45 M2, Total: 40,80 M2.
Boleto u$s 16.500.-

Saldo 24 cuotas de u$s 1600.-
Entrega junio de 2026.
Compartido con CHV Inmobiliaria.

Las medidas y superficies son aproximadas y al solo efecto informativo. Toda la información deberá ser confirmada oportunamente con la correspondiente documentación.

Gabriel Contarino
Martillero y Corredor Público
Colegiado 314 CPMCAL.

Comodidades

  • balcon Con balcon
  • Calefaccion Con calefacción
  • Ascensor Con ascensor
Ver más

Ubicación

Servicio brindado por

buscadorprop

Todos los derechos registrados:

grupotodo
whatsapp Whatsapp email Contactar telefono Llamar
Chatea con nosotros whatsapp